Nature's Will Montessori

Project Overview
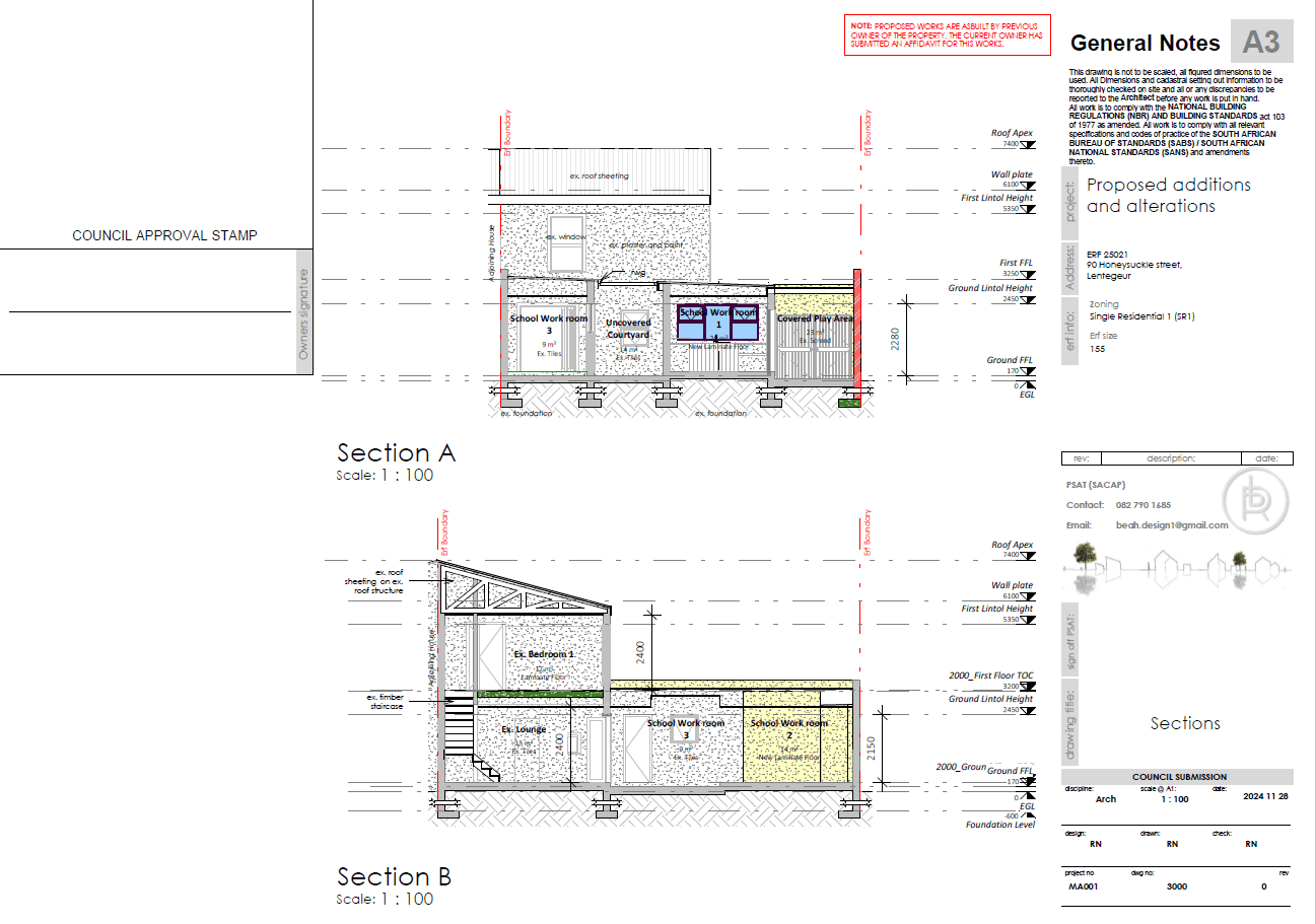
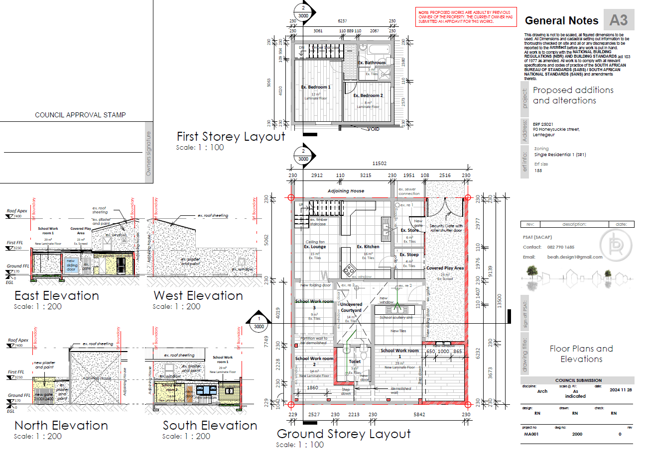
This project showcases a small Montessori school situated in a cozy home in Lentegeur. The design focuses on creating a warm, nurturing, and functional learning environment that supports early childhood education in an intimate and home-like setting.
Project Information
Project Name
Nature's Will Montessori
Project Type
Project Status
Approved
Additional Views


