Project Daniels

Project Overview
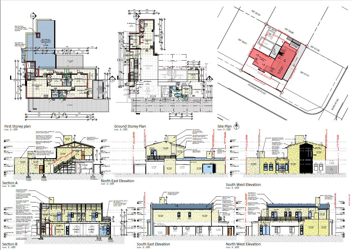
This project involved a ground floor extension to the entertainment area, improving the flow between the living, dining, and entertainment spaces. The ground floor main bedroom was also redesigned to enhance functionality and comfort. A first-floor addition was introduced, consisting of three bedrooms with ensuite bathrooms and a shared kitchen and living area, creating a practical and well-integrated living space.
Project Information
Project Name
Project Daniels
Project Type
Project Status
Complete
Additional Views

